151 Kembla Street, Wollongong, NSW 2500

Superb Residential And Commercial Potential!

4 1  

Offering both residential and commercial zoning in one of Wollongong's most desirable locations, this property offers endless potential and undeniable business and lifestyle appeal.

LOCATION

Set in a coveted location boasting both residential and commercial zoning, this location offers an incredible lifestyle and superb potential for your business.

Walk to Coniston Dog Beach and Wollongong City Beach in just eight minutes (approx.) and to Wollongong Beach in 16 minutes (approx.) for an unbeatable coastal lifestyle. Keen golfers can stroll to Wollongong Golf Club in 13 minutes (approx.), while the range of nearby parks adds extra outdoor appeal, with Peace Grove, JJ Kelly Park, and MacCabe Park all an easy stroll from home.

Emporium On Swan is ready to serve up your morning coffee a five-minute walk away (approx.), while the fabulous dining, shopping and entertainment of the CBD await within walking distance of home. Adding extra convenience are Aldi and Woolworths, both a short stroll away.

Families will enjoy easy school mornings ahead, with Coniston Public School an easy walk away and Keira High School a seven-minute drive from home (approx.), while regular Sydney-bound trains from nearby Wollongong Station promise an easy commute to Sydney.

PROPERTY

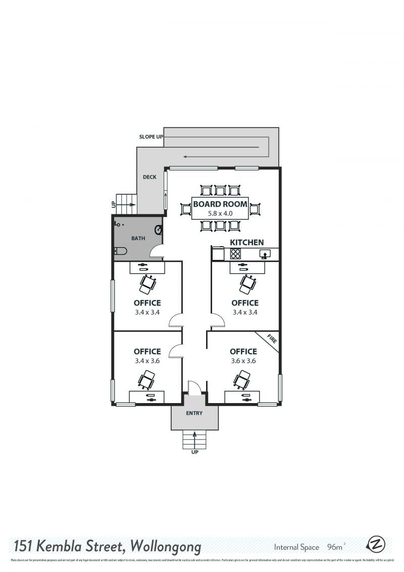
Set on 626 sqm (approx.) in a superb mixed residential and commercial zone, this updated cottage presents an exciting array of possibilities for the future.

Currently used as a place of business, the house offers four spacious offices, a large boardroom with a chic modern kitchenette and a spacious bathroom. Timber laminate floorboards lend a fresh, contemporary feel throughout, while outside an elevated deck overlooks the large back garden.

Those seeking an ideally situated inner-city retreat will see the ease with which the house could be used as a comfortable home, with the space to extend (STCA) adding extra appeal for the future. Alternatively demolish the existing dwelling (STCA) to make way for a brand-new home or business hub (STCA) to take your commercial venture to the next level, in a premium inner-city location.

LIFESTYLE

Offering a large allotment and dual zoning allowing the land to be used for residential or commercial use, this property opens a world of possibilities. Bring your vision to life in a superb location, where the CBD and beach are both within walking distance.

Don't miss your chance to come and see the potential for yourself. Call today to arrange a viewing.


**Disclaimer***

The property photos and descriptions are provided for general information purposes only. While care has been taken to ensure their accuracy, variations may exist. Prospective buyers are encouraged to conduct their own inspections and seek independent advice to confirm all details.
1